Acr1330.tmp
|
|
|
|
|
|
|
|
|
|
|
|
|
|
|
|
|
|
|
|
|
|
|
|
|
|
|
|
|
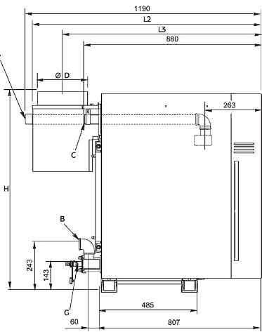
SLIM HP 1.830 iN / 1.990 iN / 1.1160 iN |
|
|
|
|
|
|
|
|
|
|
 |
|
|
|
|
 |
|
|
|
|
|
|
|
A- подача в систему отопления 1 1/2" B - возврат из системы отопления 1 1/2" C- подача газа 1 1/2" G - кран слива 1/2" D - диаметр дымохода |
|
|
|
|
|
|
|
|
|
|
|
|
|
|
|
|
|
|
МОДЕЛЬ |
SLIM HP 1.830 iN |
SLIM HP 1.990 iN |
SLIM HP 1.1160 iN |
|
|
H |
мм |
1209 |
1209 |
1209 |
|
|
L1 |
мм |
531 |
612 |
693 |
|
|
L2 |
мм |
1100 |
1100 |
1100 |
|
|
L3 |
мм |
975 |
975 |
1000 |
|
|
D |
мм |
202 |
202 |
252 |
|
|
|
|
|
|
|
|
|
|
|
|
|
|
|
|
|
|
|
|
|
|
|
|
ТЕХНИЧЕСКИЕ ХАРАКТЕРИСТИКИ |
ТОЛЬКО ОТОПЛЕНИЕ |
|
|
SLIM HP 1.830 iN |
SLIM HP 1.990 iN |
SLIM HP 1.1160 iN |
|
|
Макс. полезная тепловая мощность |
кВт |
82,8 |
99,4 |
115,9 |
|
|
Мин. полезная тепловая мощность |
кВт |
49,7 |
59,6 |
69,5 |
|
|
Макс. потребляемая тепловая мощность |
кВт |
90 |
108 |
126 |
|
|
Мин. потребляемая тепловая мощность |
кВт |
54 |
64,8 |
75,6 |
|
|
Макс. расход природного/сжиженного газа |
м3/ч (кг/ч) |
9,5 (7,0) |
11,4 (8,4) |
13,3 (9,8) |
|
|
Макс. производительность (КПД) |
% |
92 |
92 |
92 |
|
|
Производительность (КПД) при 30% мощности |
% |
92 |
92 |
92 |
|
|
Количество чугунных секций в теплообменнике |
6 |
7 |
8 |
|
|
Номинальная циркуляция воды через котел при Д1>15°С |
м3/ч |
3,56 |
4,27 |
4,98 |
|
|
Потери напора воды в котле при номин. циркуляции |
м H2O |
0,31 |
0,41 |
0,53 |
|
|
Объем воды в котле |
л |
35 |
40 |
44 |
|
|
Диаметр дымохода |
мм |
202 |
202 |
252 |
|
|
Макс. расход дымовых газов |
кг/ч |
235 |
243 |
359 |
|
|
Макс. объем дымовых газов |
м3/ч |
187 |
194 |
284 |
|
|
Необходимая тяга в дымоходе |
мбар |
0,08 |
0,08 |
0,08 |
|
|
Номинальное входное давление природного газа |
мбар |
20 |
20 |
20 |
|
|
Электрическая мощность/напряжение |
Вт/В |
150/230 |
150/230 |
150/230 |
|
|
Габаритные размеры: высота |
мм |
1209 |
1209 |
1209 |
|
|
ширина |
мм |
531 |
612 |
693 |
|
|
глубина |
мм |
1100 |
1100 |
1160 |
|
|
Вес НЕТТО/БРУТТО |
кг |
370/400 |
420/450 |
470/500 |
|
|
|
|
|
|
|
|
|
|
|
|
|
|
|
|
|
|
|
|
|
|
|
|
|
|
|
|
|
|
|
|
|
|